遊休地にコンテナ・トレーラーでグランピング施設

アウトドアブームから生まれる持続的な成長市場
近年のコロナ禍やワーケーションの普及に伴い、“自然の中での特別な体験” へのニーズが急上昇しています。このトレンドを背景に、グランピング市場は年々拡大傾向です。
ホテル・旅館需要の一部を取り込む
感染症対策や密回避の意識も追い風となり、これまでアウトドアに興味のなかった層もグランピングに流入中。特に「室内と同等以上の快適性」を自然の中でも享受できる点が、グランピング人気の大きな支えとなっています。
なぜホテルではなくグランピング投資なのか?

1、初期投資コストとリスクの低減
大規模な建築費用が不要で、用地確保や設備投資も軽量化できるため、従来型の大型宿泊施設に比べて投資リスクを大幅に抑えられます。
2、運営の柔軟性と収益性
ホテルは客室数が固定的ですが、グランピング施設はユニット追加や配置転換が容易。さらに“アウトドアの特別感”を付加価値とし、プレミアム料金を設定しやすいため、一棟あたりの利益率が高いのも特長です。
3、差別化しやすいマーケティング
自然・快適性・デザインを組み合わせた多彩な切り口でコンセプトを打ち出せるため、SNSや口コミを通じてブランド力を自動的に高めやすいメリットがあります。
なぜドーム型テントではなくコンテナトレーラーハウスなのか?

耐久性とメンテナンス性
ドーム型テントは雨風や紫外線の影響を受けやすく、長期的には維持コストがかさみがち。一方、コンテナトレーラーハウスは頑丈な構造で、メンテナンスも容易。移動や設置にも柔軟に対応でき、長期運営に最適です。
ホテル並みの快適空間
テント特有の素材感では夏冬の温度調整や防音対策が課題になりがち。しかし、コンテナトレーラーハウスなら断熱材やエアコンをしっかり導入し、ホテルのように快適な空間を維持できます。
長期投資としての価値の高さ
コンテナ構造は資産価値が落ちにくく、撤去・移設がスムーズ。土地の用途変更や拠点移動が必要になっても柔軟に対応できるので、長期的に見て投資リスクを軽減できます。
【 実際の収益事例 】

事例A:空き地に設置
◦ 初期投資:約5,000万円(コンテナ20フィート6台連結)
◦ 稼働率:平均70%
◦ 年間売上:1,300万円
◦ 投資回収期間:4〜10年
事例B:観光地周辺の広い敷地に設置
◦初期投資:約6億円(トレーラーハウス20台)
◦ 稼働率:平均30〜70%
◦ 年間売上:約3,000万円〜1億3,000万円
◦投資回収期間:4〜10年
※あくまでも一例であり、立地・運営形態により数値は変動します。
【 こんな方におすすめ 】

1、グランピング投資を検討しているオーナー様
地方創生や観光需要の高まりを捉え、高いリターンを目指したい方
2、既存のホテル・旅館事業者様
新たな付帯施設として、コンテナトレーラーハウス型サウナや宿泊棟の導入を検討中の方
3、自治体・公共団体・地域活性化プロジェクト関係者様
ユニークな宿泊施設やレジャー体験を短工期で実現し、地域全体の魅力を高めたい方
4、温浴・サウナ関連事業者様
今注目の“サウナ×アウトドア”を取り入れ、新たな集客力を生み出したい方
コンテナトレーラーハウスのメリット

1、初期投資コストを抑えやすい
工期短縮によるコスト削減:コンテナベースの施工は一般的な建築工事より短期間で完了しやすく、人件費や工事費も削減
基礎工事の簡略化:大掛かりな基礎が不要なケースが多く、初期費用を圧縮可能
2、法規制(建築基準法)上のハードルを下げられる可能性
「車両」扱いで手続き簡略化:状況によっては建築確認申請が不要になる場合も(要確認)
設置場所の柔軟性:建物扱いの制約が軽減され、開業までのスピードが早まる可能性
3、モビリティ(移動・転用)の容易さ
土地に縛られない資産運用:車両登録すれば他エリアへ移設が可能
拡張・縮小がスムーズ:ユニット追加・撤去により需給変化にも柔軟対応
4、メンテナンス性に優れる
頑丈な鋼鉄製コンテナ:防錆塗装や断熱施工で長期耐久性を確保
修繕・リフォームが簡単:ユニット単位で改装ができ、営業停止期間を最小限に
5、オペレーションの柔軟度・短期回収に向く
早期オープンでキャッシュフロー改善:着工から稼働までのリードタイムを短縮
ローリスクで始められる:撤退リスクや損失も比較的抑えやすい
6、デザイン・ブランディングのしやすさ
個性的な外観:コンテナの無骨さを活かしつつ、内外装デザインで差別化
SNS映え効果:非日常感がSNSで拡散されやすく、自然な集客力向上が期待
7、節税効果が期待できる
固定資産税が軽減・不要になる可能性:設置形態次第で“動産”扱いになるケースあり
減価償却期間の短期化:器具・備品や車両登録として計上できる場合、税負担を軽減しやすい
8、規模の拡張・再利用が容易
ユニット単位で拡張:事業好調時の棟数追加もスピーディー
リセールバリューを確保:不要になった際にコンテナ自体を売却可能
9(ナイン)のコンテナトレーラーハウスが選ばれる理由

1、業界の権威がバックアップ:確かな品質
日本RV・トレーラーハウス協会 代表理事・稲吉啓 氏が顧問
法規制や安全基準に精通した第一人者のサポートで、スムーズな事業化を実現
2、サウナ・ホテルで培った高いデザイン性
多彩なプロジェクト実績を活かした、独創的かつ実用的なデザイン提案
コンテナの無機質イメージを一新する、洗練された空間演出
3、泉南ロングパークなどの大型実績
アーバンキャンプホテルなど、実際の運営で培ったノウハウが豊富
企画・設計・運営まで一貫したサポート体制により、安心して導入可能
4、子会社「サウナイン株式会社」による運営代行
面倒な予約管理、清掃、スタッフ手配などの業務をトータルでサポート
サウナ特化のノウハウで“サウナ付きトレーラーハウス”として差別化を図れる
5、各種補助金・助成金活用のサポート
国や自治体の補助金申請に詳しく、審査通過率を高める支援が可能
初期投資を抑えつつ、ハイクオリティな施設づくりを実現
9(ナイン)のサポート内容

1、コンサルティング・プランニング
・立地・ターゲットに合わせた最適プランの提案
・補助金・助成金などの情報提供や申請サポート、資金調達アドバイス
2、デザイン・施工管理
・コンセプト策定から内外装デザインまで、ワンストップで対応
・基礎工事から設置まで、安全基準を満たした施工管理
3、運営代行・マネジメント(サウナイン株式会社)
・予約管理、集客、スタッフ教育、設備メンテナンスなど運営全般を代行
・高い稼働率とリピート率を目指す運営ノウハウ
4、アフターフォロー・収益改善サポート
・定期的なコンサルティングで運営課題を分析・改善
・追加ユニット導入やリノベーションなど、成長戦略を継続提案
・WEBサイトやSNSなどのマーケティングサポート
【 設計事例 】


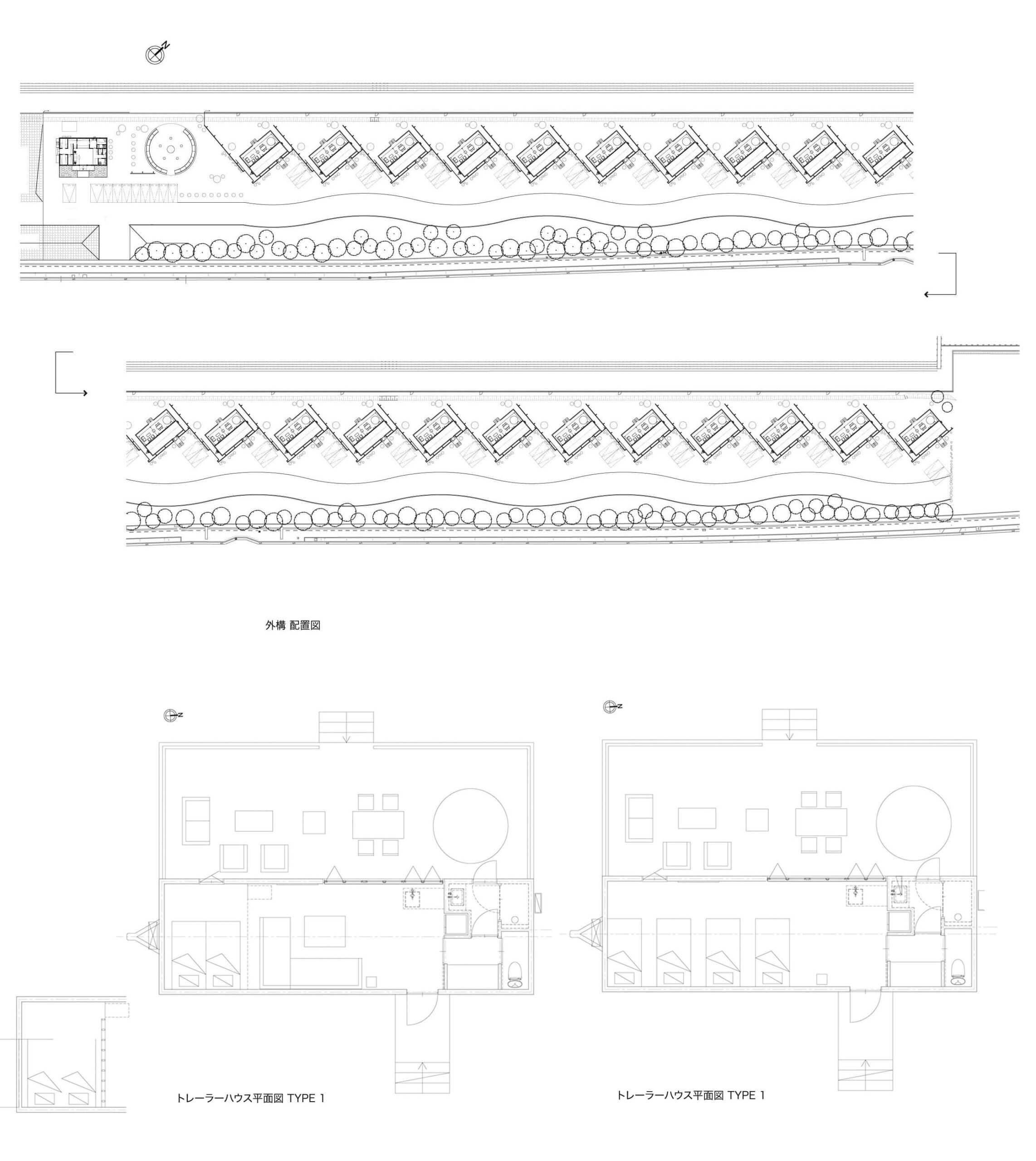
01 遊休地をトレーラーを使ったグランピングで再生
urban camp hotel marble beach(アーバンキャンプホテル/マーブルビーチ)
もと埋立地に、白い石が敷き詰められたマーブルビーチ。
パークPFIによるビーチのリノベーションです。
トレーラハウスによるキャンプホテル 「URBAN CAMP HOTEL Marble Beach」は、2020年7月3日のオープン と同時に予約が殺到し、
宿泊事業にとって非常に厳しいコロナ禍の中、10月末まで満室(予約率100%)とな っております。
本件は大阪泉南市がPFI方式を採用した公募型プロポーザルにより、株式会社デジサーフ様が運営を行ってい ます。


お問い合わせ・ご相談は下のボタンからお問い合わせくださいませ。
グランピング投資やサウナ付きトレーラーハウスなど、コンテナトレーラーハウスの活用に興味のある方は、ぜひお気軽にご連絡ください。
9(ナイン)は、企画から運営までをトータルにサポートし、短期間で魅力的な施設を実現いたします。