今昔荘 弁天町 大阪ベイ

design works 08
今昔荘 弁天町 大阪ベイ
大阪市内を中心に無人型高級宿泊施設を運営する今昔荘さまの新施設。
弁天町駅から徒歩5分以内の好立地に1棟貸しの高級貸切宿です。
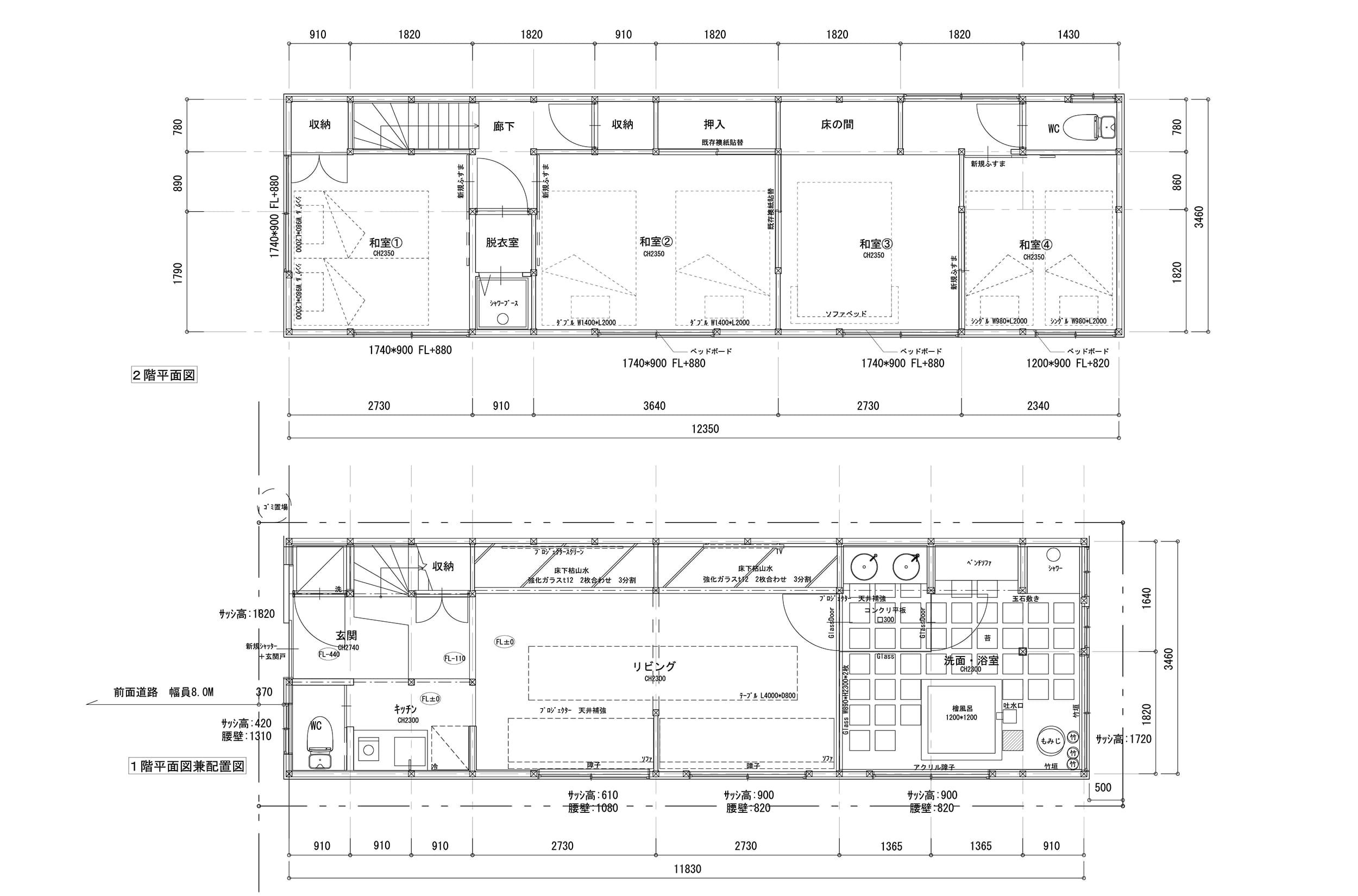
建物は大阪で多く見られる間口が狭く奥行きが深い町家形式の建物のため、ダイニング→リビング→お風呂と奥行き深い続き間を活かした一体的な空間としました。
施設内には、1枚石(レコストーン)の玄関扉、ガラス張り枯山水、枯山水を現代的に解釈デザインした檜風呂、木工用CNCルーターを利用した伝統格子を使用し、日本の特徴的なデザイン要素でお客様をもてなします。
檜風呂には、プロジェクションマッピングを投影することでお子様と何時間でも楽しむことができる仕掛けがあります。
1棟貸しのため、コロナウイルスを気にせずにご家族やご友人、最大9名の団体さままで宿泊可能です。ユニバーサルスタジオジャパン(USJ)をご利用の方にもアクセスしやすい宿泊施設です。
–
場所:〒552-0002 大阪府大阪市港区市岡元町3丁目5−6
アクセス:弁天町駅から徒歩5分/ユニバーサルスタジオジャパン(USJ)から電車で20分
施主:株式会社ファンバウンド
設計施工:9株式会社
種別:リノベーション
建物概要:木造2階建て/築60年/延床82.51m2 ご予約:http://konjakuso.jp/room6.php















