アースガーデンリゾートサウナイン東京奥多摩
our place 010
アースガーデンリゾートサウナイン東京奥多摩
アースガーデンリゾート サウナイン東京奥多摩 — 湧水とアートが共鳴する「禊(みそぎ)」のリノベーション
本プロジェクトは、都心から90分の奥多摩エリアにおいて、築60年の古民家を「薪火サウナ」と「飲める湧水プール」を核とした次世代型サウナリゾートへと再生させた建築事例です。
オープン:2025年8月
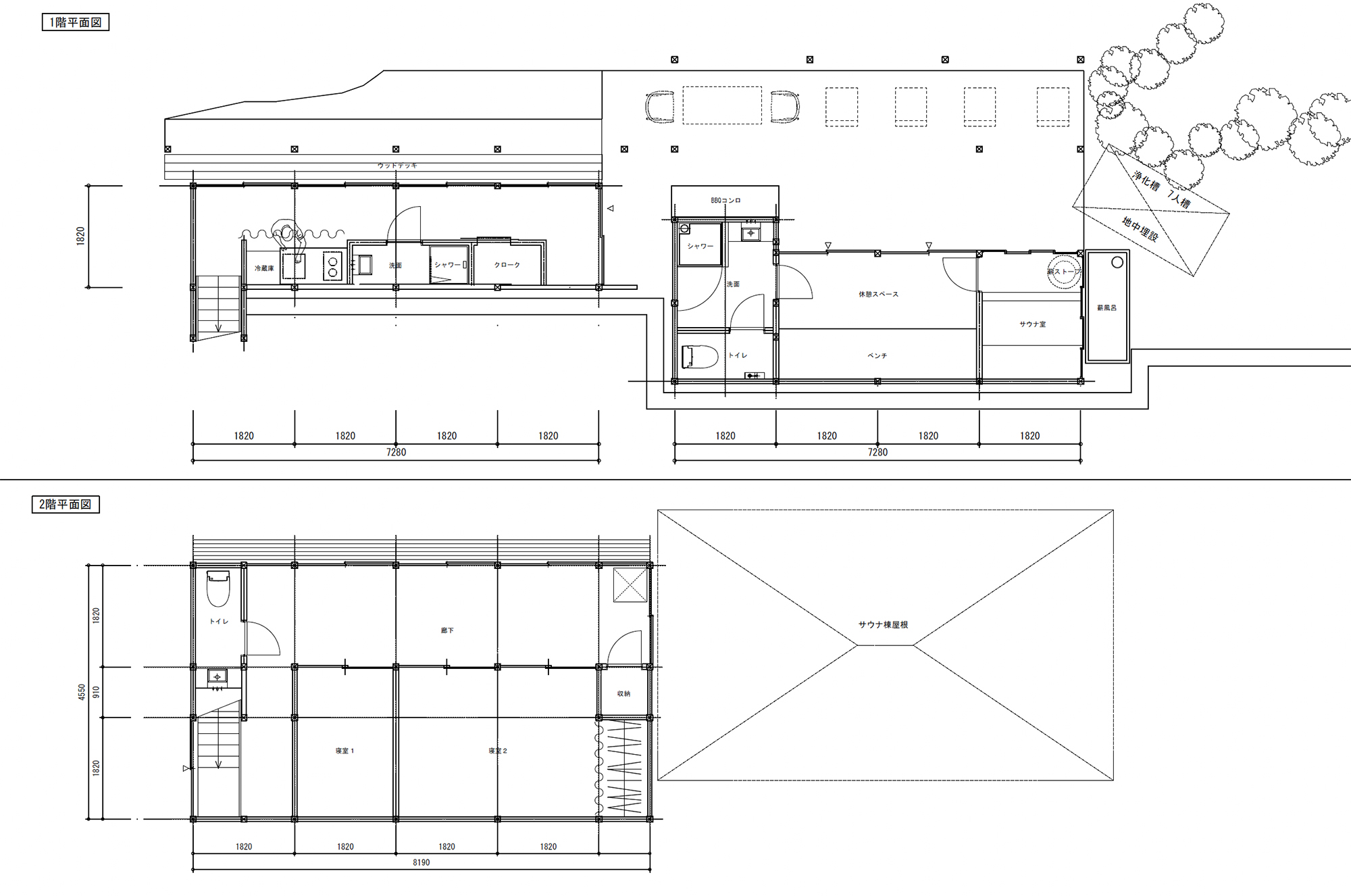
面積:77㎡
住所:東京都西多摩郡奥多摩町大丹波343
許可:宿泊業許可
工事費:3300万円
客室単価(ADR):3~20万
目標稼働率:80%
目標月間売上:120万
利益予測:780万
目標利回:20%
1. 自然資本の変換:清流と湧水を活用した「禊」のシークエンス
多摩川の清流に隣接するロケーションを活かし、自然エネルギーを体験価値へと変換する設計を行いました。
- 湧水プール(水風呂)の構築: 2×3m・水深80cmの広々としたプール型水風呂を設計。水質検査済みの清冽な湧水を贅沢にかけ流し、飲用可能な透明度を維持。8名同時入浴が可能なスケール感により、グループ利用における「ととのい」の質を向上させています。
- 外気浴の動線設計: 薪を熱源とする露天風呂とサウナ、そして清流へのダイレクトなアクセスを考慮したゾーニングを実施。川のせせらぎをBGMに、心身を清める「禊」のプロセスを建築的に演出しました。
2. 建築再生:古民家リノベーションと現代アートの融合
築60年の伝統的な木造建築が持つ構造美を継承しつつ、現代的なライフスタイルとアートを融合させています。
- 空間デザイン: 最大8名収容可能な2階建ての構成。古材の温もりを残しつつ、断熱性能や耐震性を現代基準にアップデート。館内には自然との調和をテーマにした現代アートを配置し、宿泊体験を「文化的なリトリート」へと昇華させました。
- ライフスタイルの拡充: 屋外BBQエリアやウッドデッキ上の焚き火台を一体的に設計。広大な敷地を活かした「他者に干渉されないプライベート性」を確保し、滞在型のウェルネス空間を構築しました。
3. 事業戦略:高収益を生む「宿泊DX」と「予約困難店」の創出
設計段階から運営効率を追求し、高い事業性を実現しています。
- 運営の最適化: 2025年7月の開業以来、セルフチェックイン等のシステム導入により運営コストを抑制。独自の「禅サウナ」コンセプトが市場に支持され、2ヶ月先まで予約が埋まる高稼働・高単価な施設へと成長させました。
- 付加価値の創出: 薪火による本格サウナ(最高100℃超)と、奥多摩の湧水を用いたロウリュなど、この地でしか味わえない体験価値を設計によって定義。不動産としての価値を劇的に高める「富動産」化のモデルケースとなっています。
薪露天風呂
薪をくべて湯を沸かす露天風呂では、四季折々の自然を感じながら入浴が楽しめます。夜は星空を眺めながら、朝は清らかな山の空気を吸いながら、心身が解放される時間をお過ごしください。
Open-Air Wood-Fired Bath
Wood-Fired Outdoor Bath: Enjoy a luxurious soak under the stars or in the crisp morning air, with a bath heated by crackling firewood. Experience the magic of each season as you immerse yourself in nature’s embrace.
清流を望む屋外BBQエリア
地近くを流れる川を眺めながらバーベキューを楽しめるエリアを完備。釣りや川遊びのあとに、新鮮な川魚をその場で焼いて味わう贅沢は、奥多摩ならではの体験です。
Riverside BBQ Area
Riverside BBQ Area: Take in the nearby river scenery while grilling local ingredients. After fishing or dipping into the water, savor freshly caught fish right on the spot—a unique Okutama adventure.
アート展示
館内や敷地内には、現代アートや地元作家の作品を展示。自然との調和をテーマにしたインスタレーションが、古民家の空気感と交わり、訪れる方々に新鮮な感動を与えます。サウナで研ぎ澄まされた感性を存分に刺激してください。
Fusion of Nature & Art
Nature-Inspired Installations: Throughout the lodge and grounds, discover contemporary and local artworks themed around harmony with nature. These installations blend seamlessly with the historic farmhouse atmosphere, offering a refreshing aesthetic experience—especially when your senses are heightened post-sauna.
特徴と魅力 (Features & Highlights)
禅サウナ体験 (Zen Sauna Experience)
サウナと禅の瞑想を組み合わせた新感覚のウェルネス。湧水ロウリュの柔らかな蒸気と静寂に包まれた外気浴で、深い内省と至福のリラクゼーションを体感できます。
Zen Sauna Method: Our distinctive approach combines the detoxifying heat of a sauna with the introspection of Zen meditation. Enjoy gentle spring-water löyly, then rest in the open air for profound reflection and blissful relaxation.
最上級の「ととのい」を味わう (Peak “Totonoi” Experience)
2×3メートルの湧水プールで冷水浴を行うことで、サウナーにとって究極の快感を得られます。サウナと組み合わせることで血管の収縮・拡張が促進され、自律神経がリセットされるような爽快感が得られます。
Achieving Peak “Totonoi” with a 2×3m Spring-Water Pool: Immerse in our spacious cold plunge for the ultimate sauna high. Alternating between the hot sauna and this cool spring water stimulates intense vascular activity, resetting your autonomic nervous system for unmatched rejuvenation.
多彩なアクティビティ (Variety of Activities)
奥多摩の大自然を満喫できる釣りや川へのダイブ、ハイキング、キャニオニングなどもおすすめ。アクティブに楽しんだあとのサウナと水風呂は一層格別です。
Outdoor Adventures in Okutama: From fishing and river-diving to hiking and canyoning, Okutama’s lush landscape offers endless opportunities. Afterward, the sauna-and-cold-plunge routine feels all the more rewarding.
アートを楽しむ空間 (Art & Design Harmony)
伝統的な古民家の魅力と現代アートの調和が、本施設ならではの非日常感を演出。感性を刺激する展示が、リラックスした心身に新たな発見をもたらします。
Engaging with Art: The fusion of a traditional farmhouse’s character and modern art installations creates a unique atmosphere. Let these thought-provoking pieces enhance your relaxed state, opening up fresh perspectives.






























