H邸|ビルリノベーション

housedesign works 020
H邸|住宅 リノベーション デザイン|大阪
リノベーション・オブ・ザ・イヤー 2014 』にて「部門グランプリ <無差別級>賞」を受賞いたしました!
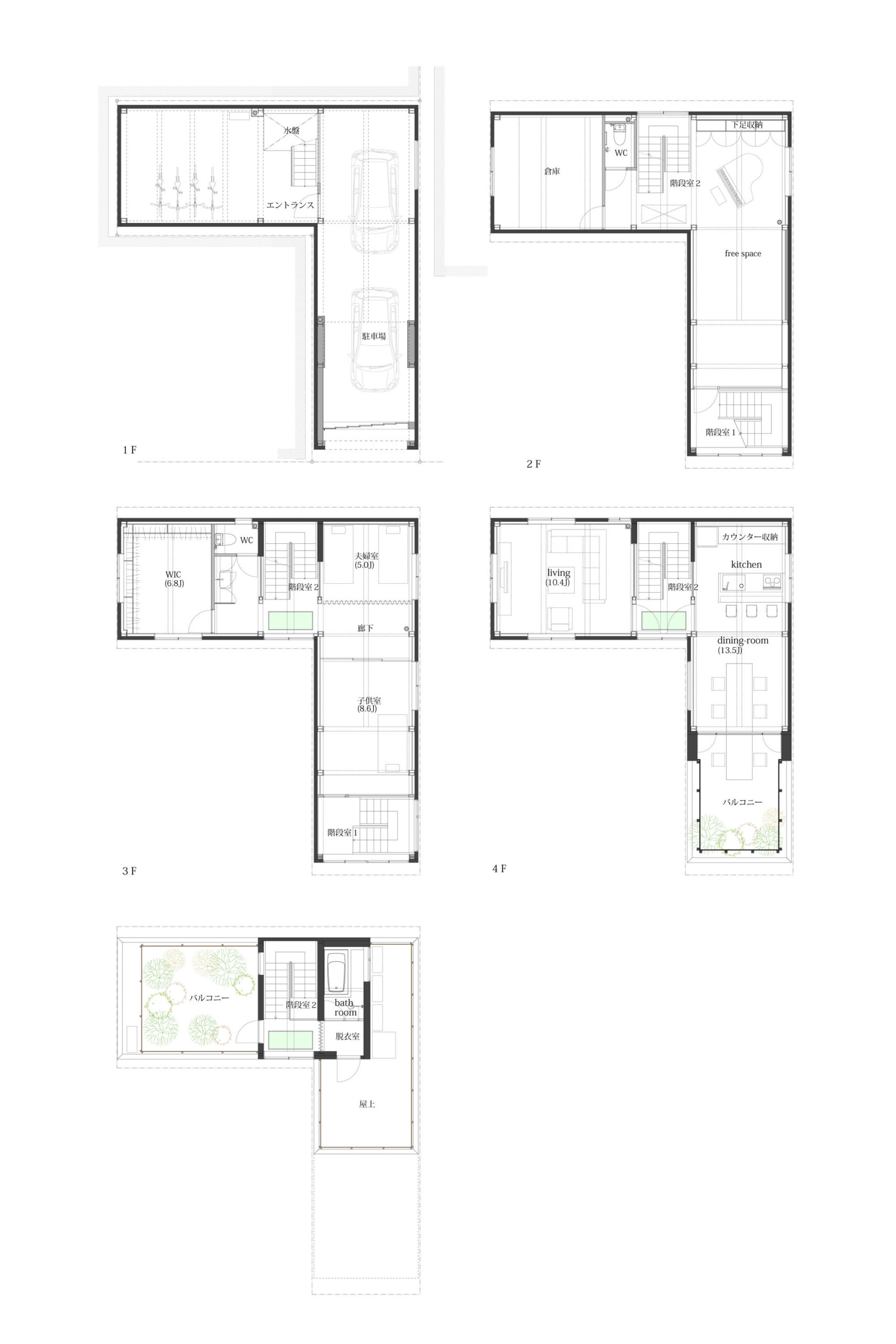
物件は大阪西区靭公園の近くに建つ築48年、ワンフロア約20坪の4階建てオフィスビルです。
外周のほとんどがビルに隣接しており、屋内にはほとんど光が入らない状態でした。また、内階段で行き来できるためフロア貸しが難しく、比較的安価に売りに出されていました。
依頼主はご夫婦でアパレルブランドを経営されている、9代表久田の友人。
注文内容は以下の4点。
1) 現状ほとんど光が入らない3階の個室・4階のベッドルームを明るくすること。
2) 向かいのビルの視線を遮りつつ、4階リビングを広く開放的に感じさせること。
3) パンク、プリミティブ、ピュアという9のデザインコンセプトを表現すること。
4) 1階を駐車場にしたうえで、防犯を最大限確保すること。
各解決方法は以下。
1) 建物中心部の内階段に着目。踊り場の床に153cm×63cmのガラスをはめ込み、そこから光を落とす。階段室の間仕切りにもガラスをはめこみ、落ちた光を各居室に取り込む。
2) ルーフバルコニーとリビングの間を全面ガラスにし、ダイニングテーブルがガラスを貫通する形にデザイン。テーブルに誘導された視線は屋外へ向き、空間を広く感じさせる。また、ルーフバルコニーの周囲に開閉可能な木製ルーバーを取り付け、向かいのビルからの視線を解決。
3) そのままテーブルにも出せる、スプーンとフォークのシャンデリア。意図的に露出させてみせる建物の元の姿。装飾を排除したモルタルとコンクリートの質感。これらはそれぞれパンク・プリミティブ・ピュアを端的に表す例として挙げられる。
4) 駐車場入口は施錠可能な鉄製引戸を7枚設置。車の出入り可能寸法と防犯を確保。
今回は述べ床261平方メートル・工事費2500万円と個人宅としては大規模なリノベーションになりましたが、小規模なオフィスビル、特に老朽化した内階段型のビルは比較的安く購入できます。人気地区の地価は下がりにくく、資産保全の観点からも優秀。今後、都市部移住の選択肢として浸透すれば、街の動きも変わっていくはずです。
















